Ferienwohnung im Schwedenhaus am Fuße des Köterberges/Lippe

Info
Unterkunft #1775
32676, Europa, Deutschland, Niedersachsen, Mittelweser ,Lügde Hummersen am Köterberg.
Erholungsurlaub, Wanderurlaub
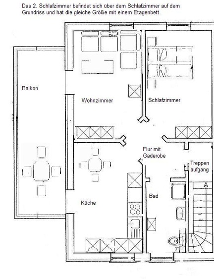
Die Wohnung hat etwa 60 m2 Wohnfläche. Die Küche ist mit modernen Markenmöbeln und besten E-Geräten (Kühlgefrierschrank, Backofen,Cerankochfeld, Dunstabzugshaube, Geschirrspüler, Mikrowelle, Kaffeemaschine,Toster, Wasserkocher,..) und reichlich Koch- und Essgeschirr ausgestattet. Im Wohnzimmer steht eine Ledergarnitur mit Schlaffunktion und Kleinschränke mit Accessoires zum wohlfühlen. Beide Räume sind hell, da sie über ein Fenster und eine Balkontür verfügen. Somit haben beide Räume auch einen Zugang zum Südbalkon mit Gartenblick. In dem modern gefliesten Bad finden Sie eine Dusche, ein Waschbecken, die Toilette und Badmöbel. Bleibt noch der Gang ins Schlafzimmer mit dem Doppelbett und seinen Nachtschränken mit Lampe. Natülich muss auch der Kleiderschrank in der Aufzählung genannt werden.
Vom Schlafzimmer aus führt eine Holztreppe in den 3. Stock des Hauses, wo 2 weitere Personen in einem Etagenbett übernachten können. Sozusagen die Schlafkoje der Kinder, auch für Erwachsene geeignet.
Der 49,-- € Grundpreis / pro Nacht gilt für 2 Erwachsene, jede weitere Person 8,-- €, Kinder bis 10 Jahre frei. Endreinigung ist in den Tagespreis eingerechnet.
Bei Anmietung bis 4 Nächten fallen einmalig 30,-- € zusätzlich an.
In den Ferienmonaten ist der Zweipersonengrundpreis 57,-- € je Nacht.
Bettwäsche, Handtücher, Tischwäsche, W-LAN, Telefongespräche ins deutsche Festnetz und die Endreinigung sind im Preis enthalten.
Fahrräder frei.
2 Fussminuten zum solarbeheizten Freibad, 1 Km zum Golfplatz, 2 Minuten zum Nordic-Walking-Park, Blick in Wald und Wiesen.
2 Fussinuten bis zum Hotel zur Post mit Kegelbahn. Lassen Sie sich mit einer Pizza und einem frisch gezapften Bier oder einem Glas Wein in einem schönem Ambiente verwöhnen. Alle Speisen auch auf Vorbestellung zur Abholung.
Ausstattung
Dusche, WC
Balkon/Terrasse, Garten, Grillmöglichkeit, Kinderspielplatz, PKW-Stellplatz, Tischtennis
Kleinkindausstattung
Elektroherd, Kühlschrank, Geschirrspüler, Mikrowelle, Geschirreinrichtung
Radio, TV, PC mit Internetanschluss, Waschmaschine, Fahrräder, Sonnenliegen, Bettwäsche, Handtücher
Seniorengerecht, Kinder
Umgebung
Hummersen ist ein Super Ausgangspunkt für beste Individualität :
Hummersen ist ein kleiner idyllischer Ort mit Geschichte. Hier finden Sie eine saubere klare Luft vor, dies liegt daran, dass wir von hügeligen Wäldern umgeben sind und bei uns keine Industrie vorhanden ist, die die Umwelt belasten. Zudem haben wir keinen direkten Durchgangsverkehr. Wir liegen zwischen dem Weserbergland und dem Teutoburger Wald (bekannt durch das Hermannsdenkmal und der Varusschlacht, die Römer gegen die Germanen). Hier kann man sich in Ruhe zurück lehnen und die Erlebnisse in der Region auf sich wirken lassen. 15 Autominuten bis zum Schieder See.
Im Umkreis von 50 km um unsere Ferienwohnung finden Sie über 50 Ausflugsziele, von denen in der Wohnung Prospektmaterial für Sie bereit liegt. Besonderheiten sind die Adlerwarte mit Schauflügen verschiedener Raubvögel, der Vogelpark in dem die Besucher verschiedene Vogelarten auf die Schulter gesetzt bekommen, die Externsteine, das Hermannsdenkmal, das Freilichtmuseum, der Teuto-Kletterpark, ein Hochseilgarten in einer Höhen bis 12 Metern, verschiedene Schlösser, die Rattenfängerstadt Hameln, die Münchhausenstadt Bodenwerder und vieles mehr. In Detmold und Bad Pyrmont gibt es Theater- und Freilichtaktivitäten. Ganz in der Nähe kann man sich auch Aufführungen von Freilichtbühnen ansehen.
Wie wäre es mit einem Einkaufsbummel in Paderborn, Hannover, Hildesheim, Bielefeld oder Kassel?
Einfach los fahren und Spass haben dann am Abend zurück kommen und sich in unser Wohnung wohl fühlen und auf den nächsten Tag vorbereiten oder nur faulänzen.
Urlaub, wie er sein soll.
Reitmöglichkeit, Wasserski, Fahrradverleih
Hannover (80 Kilometer)
Bad Pyrmont (12 Kilometer)
Preise
Preisrechner
Kontakt
deutsch
05283326
01704004093
Belegungsplan für Jahr 2026
| 01 | 02 | 03 | 04 | 05 | 06 | 07 | 08 | 09 | 10 | 11 | 12 | 13 | 14 | 15 | 16 | 17 | 18 | 19 | 20 | 21 | 22 | 23 | 24 | 25 | 26 | 27 | 28 | 29 | 30 | 31 | |
| Jan | |||||||||||||||||||||||||||||||
| Feb | |||||||||||||||||||||||||||||||
| Mar | |||||||||||||||||||||||||||||||
| Apr | |||||||||||||||||||||||||||||||
| May | |||||||||||||||||||||||||||||||
| Jun | |||||||||||||||||||||||||||||||
| Jul | |||||||||||||||||||||||||||||||
| Aug | |||||||||||||||||||||||||||||||
| Sep | |||||||||||||||||||||||||||||||
| Oct | |||||||||||||||||||||||||||||||
| Nov | |||||||||||||||||||||||||||||||
| Dec |
Nachricht schreiben
Achten Sie auf die korrekte Schreibweise Ihrer eMail-Adresse, damit der Inserent auf Ihre Anfrage antworten kann.
Felder mit sind zwingend auszufüllen.



















